最新消息
#空間裝修 #分享 新竹室內設計|小戶輕裝潢73萬|水設室內設計|北歐風格
18坪居然可以擁有兩房兩廳還有更衣室!顛覆了我對小坪數房子的想像,整個家奶白奶白的,好溫馨!
我是出差到新竹才知道同學換新家了,因為同學女兒即將上國小,希望能讓女兒擁有自己獨立的房間,這才舉家買屋~~
同學夫妻倆也是買人生第一間房子,在新家灌注了很多期待與心血,帶大家一起來開箱👇
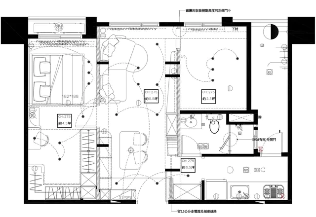
✨平面配置圖✨
小坪數房子最重要的是空間規劃,規劃得當,家住起來既舒服又不會覺得空間小。
同學說他們找過幾間室內設計,但一直不太滿意,就是少了一種心靈相通的默契感,後來透過朋友輾轉介紹,認識了水設室內設計,和負責的設計師溝通很流暢,幾乎是只要說出一個想法,下一秒設計師就可以領悟給出非常喜歡的規劃!所以回家只考慮了半天就決定和他們簽約,開始裝潢啦!

✨原始&施工照✨
其實一開始同學給我看照片的時候,我還不相信這是原本的樣子,怎麼裝潢後看起來比裝潢前還大!!果然室內設計是魔法✨✨

▼透過木工師傅的巧手,實現夢想ing!

✨完工美照✨
客廳
一走進門,直面採光良好的小客廳,奶白色沙發與暖色調木地板,都讓住家顯得更加溫馨宜居。
因為寬幅不大,所以沒有選擇正規尺寸的茶几,而是選擇小邊桌,既能點綴又不失放置物品的功能~
同時也捨棄電視櫃改以層架,簡約不佔空間。

▼而且我發現電視牆和層架不是方正的,是三角形立體狀!一問才知道是設計師的小巧思!
避免開門一覽無遺缺乏隱私感,以及穿堂煞的問題,一般設計師多會做屏風阻擋,但因同學家中門口空間狹窄,所以設計師另想設法將電視牆與收納櫃體向中央攏起形成立體三角形,不僅化解開門見窗與隱私問題,同時也打造出空間主視覺焦點。

廚房
同時將原始廚房入口與電視牆面拉齊,重新獲得方正格局,同時擴充廚房內使用空間。

玄關
是我送的奈良美智耶❤️
因為同學從以前就很喜歡奈良美智,所以特地買來畫作當她的生日禮物,看到出現在他們新家玄關,感動~~

▼設計上做了很多的半圓弧木作巧思,比起規矩方正的櫃子更有活潑感,讓小坪數也能充滿精緻氛圍!

▼歐洲風情的藍紋花磚~鋪設六角花磚界定落塵區,即使是小戶型,該有的重點一個都不能少!

▼餐廳設置卡座,增加收納空間也不會影響動線寬度,同時也是穿鞋椅~

主臥室
以鏤空柱體明確劃分寢臥區、更衣區。
通常柱體是空間規劃的阻礙,尤其是在小坪數更容易讓空間顯得零碎,但水設設計師成功透過巧妙的設計!將阻力化為助力,使主臥空間更有層次!

▼自始連貫空間的半圓弧設計~

▼開放式衣櫃也運用了柱體 ,擴增出足夠深度來容納行李箱與換季衣物,十分方便。

次臥
女兒房間簡單舒適,要開始練習自己睡、自己整理房間啦!

有了自己的新家,同學說每天都抱持著珍惜的心情,愛護家中一點一滴,在這個溫馨小家,與先生小孩舒適生活創造回憶,充滿了奮鬥的動力!也希望大家會喜歡這份簡單的分享🥰
相關資訊
屋齡|三年
居住成員|2大人1小孩
坪數|18坪
風格|北歐
類型|電梯大樓
屋況|新古屋
空間格局|2房1廳1衛
建材|AICA美耐板、藝術塗料、鐵件、長虹玻璃、汝木地板、SPC六角磚木地板
裝潢費用|73萬(系統23.5/木作49.5)
設計公司|水設室內設計
https://www.shuei-design.com/
水設室內設計粉專
https://www.facebook.com/shuei.interiordesign
完整作品
https://www.shuei-design.com/products/info.php?id=36989
-
【開箱】15坪溫馨單身小宅│有捨有得×玻璃書房×佛龕信仰×實用收納設計|新竹室內設計|竹北室內設計
來開箱我親愛的獨居貴族姊姊的新家!
雖然只有15坪的1+1房,但每一處完全是依照她的喜好和需求量身打造。
作為一個同樣熱愛居家布置的家庭主婦,真的有被這個小宅的合理運用空間 -
【開箱】新竹│我家得獎了!輕奢質感灰階宅|新竹住宅設計推薦| 竹北住宅設計推薦
沒想到我家得獎了!很開心自己的裝潢品味獲得認可!
整理一下照片和大家分享(翻了好久相簿XD)
-
【開箱】新竹19坪淡奶油輕法式裝潢圓弧拱門神秘的化妝台|新竹系統家具推薦|竹北系統家具推薦
│前情提要│
在買房子前,我朋友Eva是標準的租屋派,覺得租屋可以住得好又不用背貸款,但歷經幾次搬家,最後一根稻草是房東說房子賣掉了請她搬家,身不由己的無奈,讓她下定決心要買一間屬於自己