實本記事
睦森林.20年「家」的預見與實踐
![]() | 台中W宅 施作面積:60坪 年份:2025 地點:台中 設計:還原規劃 監造:實本裝修整合 本案位於台中「睦森林」的一處雙層特別戶型,實際坪數60坪。業主W先生作為一名年輕建商老闆,目前單身的他對居住空間有著清晰且獨到的見解。 |
![]() | ![]() |
![]() | ![]() |
![]() | ![]() |
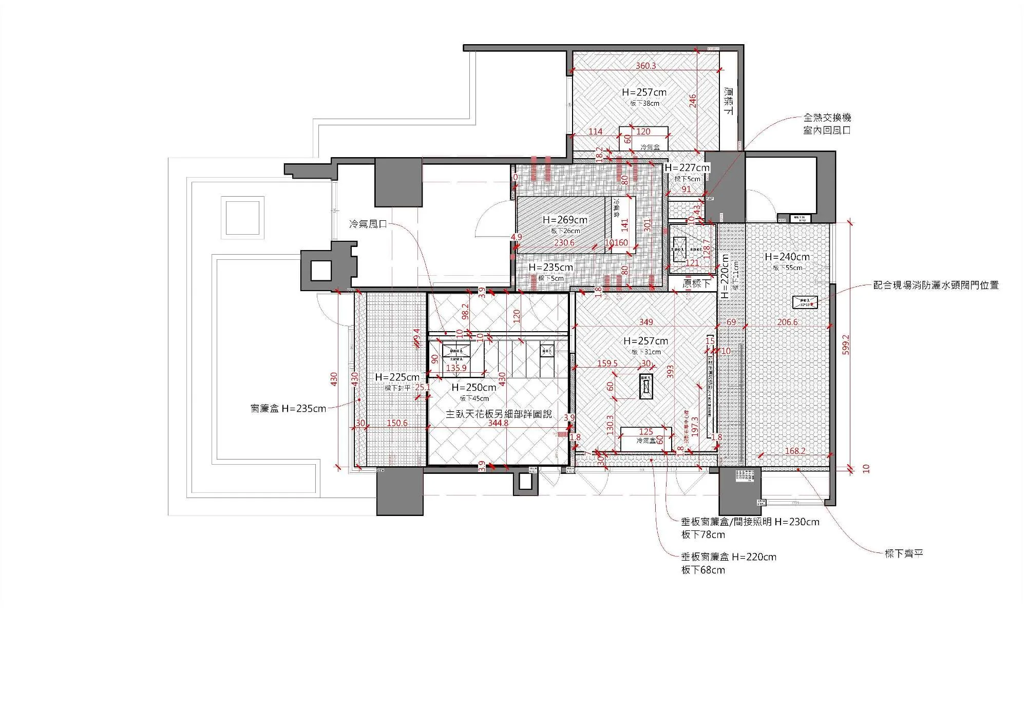
| 一、規劃階段:預留與深究,長遠的思量 W先生核心需求是「保留所有空間使用機能的可能性」。除了天花板、電視牆與起居室隔間牆之外,基礎裝修皆可精簡化。 他要求本案未來不能因家庭成員變化或功能調整而被迫二次施工,以應對未來家庭成員增加的可能。此外,所有工程品質需達20年的長期使用標準,空間造型則一切回歸機能本位,不得有不必要的多於。 這使前期規劃工作變得極為複雜而關鍵,這片看似單純的「天花」,實則承載了未來所有機能的基礎。 | |
![]() | ![]() |
![]() | ![]() |
二、工程實踐:精準佈局,細節的累積 首先,天花板的木作工法是本案的施工重點: 一般常見的平釘天花板通常在3~5年後就會陸續出現微量變形與扭曲,進而影響平整性(俗稱海波浪)。但此案天花板平整性要求是至少20年,為此我們大幅調整了吊筋、縱/橫向骨架、封板的結構與固定形式,以最大限度消除扭曲及變形的可能性。 | |
![]() | ![]() |
![]() | ![]() |
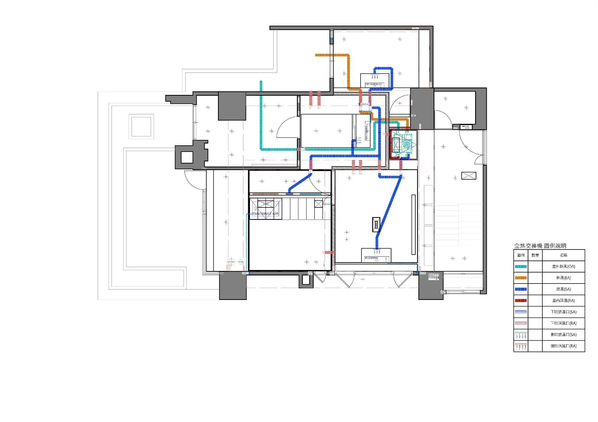
其次,吊隱式空調及全熱交換機的養護設計亦是考量重點: 有別於一般僅供保養的小型維修孔,我們為機組設計了專用下掀式大型維修孔,確保未來無需拆除天花板,即可進行整組機台的拆裝與養護。並進一步加強了周圍承重結構,以應對未來拆裝養護機組時不可避免的下壓承重需求,確保天花板的平整性。 | |
![]() | ![]() |
![]() | ![]() |
最後,透過多工種協作才得以完成的起居室鐵件隔間牆亦是一大挑戰: 為滿足隔間、採光、收納、電源控制等諸多需求,混合鐵件、木作、玻璃的結構概念隨之應孕而生。隨後在鐵工、木工、玻璃、水電工班的高度配合下,此面隔間牆分毫不差地佇立於梯間旁的放樣線上。 | |
![]() | ![]() |
![]() | ![]() |
![]() | ![]() |
結語:回歸居所的本真 完工交屋時,屋內空間呈現出樸實的空曠感,沒有多餘的造型與裝飾,甚至沒有家具擺設。但幾近絕對平整的天花板,配上「二補二底一面」工序施作的乳膠漆塗裝,使整個空間呈現沉穩、洗鍊、絕不苟同的精神,在日照充足的時段甚至能看見大面天花的完整反光。 W先生對此成果表達了高度的滿意。他理解,這份看似空蕩的空間,實則蘊含著工程品質的承諾、長遠的居住價值以及大量隱形成本的節省。 本案專注於構築一個能真實反映生活本質、經得起時間考驗的居所。我們的價值,體現於規劃階段對每一個細節的務實考量,以及基於工藝原理對未來使用性的周全預備。 | |
























