文章管理
「專訪」築一室洋房風‧漫拾相伴時刻!台北 42 坪現代人文熟齡宅 - 十拾設計
生命若是一趟行旅,走向熟齡則迎來無與倫比豐盛,步伐更為輕盈、心處波瀾不興,屋主曾久居美國,如今回台定居,展開夫妻倆人新旅程,委託予曾屢次推薦為友人打造屋宅的 十拾設計,期望將細膩手筆,以及對團隊的熟稔安心感,攬入家宅中。
渡過人生數十載,無論心習、愛好,已然成為日日滋養,盼綿延為生活家景,有一處沏茶沉思、有一曲旋律揚升,設計師說道「屋主相當注重原有習慣,體現於物件尺度上,像是不希望改動盥洗臉盆尺寸、高度,甚至每一道門片開闔方式,我們不只要為居者保有一份熟悉感,更需納入未來時空,隨著時間展演,生命歷程愈年長時,還需思量安全條件,作為熟齡宅基石。」

Q:如何運用跳色?
梳理空間時,以配置回應屋主日常,然則注入片片色彩,像是點亮每一次與回憶交會瞬間,從玄關緩步入內,色彩沿著紅色轉為蘋果綠,再漸入藍綠色客廳,設計師提及「起初並非定調以多色系跳轉串連,而是一次次溝通後,顏色悄然為場域幻化不同趣味,成為煥亮關鍵。」
屋主長年居住美國,慣於美式洋房風格,希望在客廳壁面打造家族牆,為了簡化相框繁複線條,便引沉穩又明亮藍綠漆料為立面,再置入大小不一相框,一張張由快門聚焦之回憶,在一抹清新色澤上,帶入濃郁歐美質感,凝縮為進入往日時光之牆,將掛念兒孫的心情刻印成家中一隅。

Q:如何引設計豐富熟齡生活?
格局影響起居輪廓,設計師說道「台灣建物在 20 年期間,歷經了轉換期,早期沒有將客廳、餐廳、廚房串連,使得多數人常將客廳作為多功能區,用餐、聊天、閱讀都在同一室,格局從此養成了習慣。」
為了將日常體驗與空間劃出分野,透過動線一一梳理,為客餐廳創造互動感,同時捨去過往中式圓桌,置入份量感十足原木長桌,將生活場景拉移至公共區,如今家人關係更形融洽,自處也愉悅自得,使熟齡相互陪伴時間更多了。

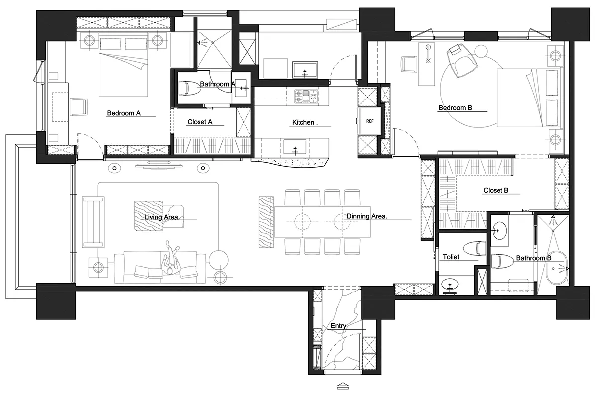
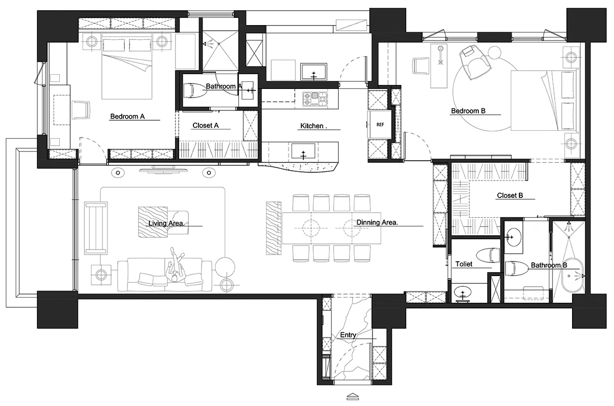
個案基本資料
台北 / 屋齡 4 年 / 電梯大樓 / 室內 42 坪 / 格局 2 房 2 廳 3 衛 / 居住人數 2 大

< 屋主需求 >
• 以原比例打造物件尺寸
• 將信仰注入設計
< 各別空間 >
1. 玄關設計:
信仰是夫妻生活重心之一,為使返家即見心中圖騰,設計團隊引用由內透映、煥發暖光,將十字架造型作為一盞壁燈,不僅化顯了印記,亦將信仰虔誠之愛,以富寓意方式呈現。

屋主偏好紋理鮮明木質,最初草圖以黑檀木全然包覆櫃體,內隱入電錶箱、管道間,但是單一語彙無法完美顯影十字架壁燈廓型。

嘗試了不同色系後,以具有歐風質調的紅色,與黑檀木相互襯托,反而一展大器風範,同時引入金色絲紋的金鑲玉石材,使獨立落塵區,圍塑出層次感。

2. 客廳設計:
為顯豐厚大器姿態,不僅以銀灰珍珠石面為主牆,在總達 5 米 2 長度下,以對稱手法切分,左右分側藉由鍍鈦格柵線條與灰玻穿引,左側為進入男主臥門片,右側僅以裝飾性樣式示面,滿室律動除了從對稱比例顯現,石材也由餐廳中島流動至此,化顯了整體一致性。

沙發背牆由藍綠色形構日常光景,漆面與石材面正好跳出一緩一重比例,為了圍塑客餐廳互動,悉心以長形拼貼法,勾勒一地縱向木地板,兩域拉大延伸,上方天花亦細細編排了高低線板,設計師說道「多一道線條,便多一處轉折,光影便會穿流於細節處,細膩感也因而加深。」

3. 餐廳設計:
擺置大尺度原木餐桌,成為返家即景,因無爐灶對門風水疑慮,為突顯桌形與場域輪廓貼合,以及視線敞闊尺幅,無垂掛任何燈飾,清朗感讓渡予用餐區,直至一式中島才清晰劃分為界。

4. 廚房設計:
為了篩去料理物品所形視覺雜亂,在高 85 公分中島檯之側,上方形塑一式鍍鈦為邊的吊杯架,下方築起一道銀灰珍珠石壁面,刻劃出彷如鑽石多角面向,構成立體樣態立面,讓視軸有了多角趣味。

烹煮區內隱一道活潑蘋果綠烤漆玻璃,為弱化周邊色彩,以灰泥色鋪敘上下櫃,使顏色主從關係層層遞進、平衡表現。

5. 男主臥設計:
臥房面處林蔭大道,於迎光面以橘紅色點綴,考量房內坪數不甚公領域敞亮,木皮紋理需順隨場域大小而異,依遠近視角決定肌理大小,櫃面選擇稍稍細緻柚木皮,並襯以胡桃木為面。

床板在男主人參訪王大閎故居時,突有了靈感,特別喜愛由建築人視角,中西合併簡約線條,設計團隊便量身訂製床架,臥眠區浮顯獨特之美。

6. 更衣室設計:
男主人希望出入更衣室時,無任何門片阻隔,意謂與主臥之間,須以更加通透、緊密方式連結,書櫃便取決入更衣風格之主要量體,特意形塑染深藍橡木皮色為邊框,以不同大小與形狀,推升了使用靈活度與語彙之巧妙性。

就在深藍色流動入內時,引灰鏡、黑鐵櫃共構,延續深色調性,降低儲放衣物彩度,使沉穩感泛漫全室。

7. 男主衛浴設計:
主衛浴由更衣室進入,將原本坪數較大衛浴,讓渡予更衣區,因內部公共管線不可挪動,將浴缸拆除後,以沉穩幾何線條描摹為風格主調。

8. 女主臥房設計:
此臥房為原兩間小臥房打通為一室,引潔淨白系為底調,展以信仰畫面的大圖輸出為床背牆背景,書桌後方砌一道紋理鮮明竹林綠石材為端景。

一側黑檀木、灰玻書架,因後方與內嵌廚房冰箱相鄰,中央兩道櫃體深度顯薄,仍以全包覆手法,展現完整性。

9. 女主衛浴設計:
考量日後彈性使用,放置可移動浴桶,依然劃分出乾濕兩區,便於水區維護與排水,悉心為日後銀髮階段準備。

10. 客浴設計:
以精緻手法形塑小坪數客浴,綴飾整道鏡面,放大坪效,盥洗區選擇凸面小麵包磚砌牆,長形鏡刻意置偏,烘托雅致質地。

< 總體規劃 >
11. 建材挑選:
黑檀木、板材烤漆、海島型木地板、橡木染色、銀灰珍珠石材、鍍鈦、灰玻、金鑲玉石材、竹林綠石材、小麵包磚、磁磚、漆料、木皮、烤漆玻璃

< 設計團隊 >
十拾設計
桃園市龜山區文化五路16號1樓
電話:03-397-1071
Email:t.tendesign@gmail.com
FB:facebook.com/t.tendesign/
IG:instagram.com/t.ten_design/
原文出處 ► https://decomyplace.com/n.php?id=10828
-
「專訪」開啟 45 年透天新篇章,改造桃園 69 坪簡約二代宅 - 十拾設計
家屋乘載著一個家庭的開枝散葉,有聚首,有離別,有的離家另組家庭,也有的留下陪伴父母,一如 45 年來為屋主一家遮風避雨的這幢老透天,紀錄著一家人有時各奔東西,有時相守的種種。
-
歡迎光臨,後來(Whole Life)!以一間書香濃郁的咖啡館,抵達最終的自己
在人生旅程中,我們總是拼命想要達到一個偉大的目標,持續追逐夢想,或是追求一場永恆的幸福,然而,當生命旅途不斷延伸,我們會逐漸意識到,那遙不可及的遠方都是為了抵達自己。
-
「專訪」萌孩狗派的生活日常!三重 23 坪暖潤系四口居 - 十拾設計
十拾設計一手打造四口之家,當設計師講述擘劃理念時,不時在爽朗笑聲中,提及屋主夫妻正是狗派人,為了讓大兒子紅貴賓犬,與小兒子共享美好童年,在搬遷至三重新居時,為寵物與萌孩重新細心思量,構築承載一家四口的