文章管理
「專訪」萌孩狗派的生活日常!三重 23 坪暖潤系四口居 - 十拾設計
你是狗派還是貓派?走入由 十拾設計 一手打造四口之家,當設計師講述擘劃理念時,不時在爽朗笑聲中,提及屋主夫妻正是狗派人,為了讓大兒子紅貴賓犬,與小兒子共享美好童年,在搬遷至三重新居時,為寵物與萌孩重新細心思量,構築承載一家四口的生活空間。

然則滿溢之愛流動於四口之家,初始是以夫妻兩人愛情為起點,每日掬在手掌心的零碎片刻,都是不容逸散的真心,為使女主人上下班,縮短車程距離,讓回家陪伴孩子時間更多,於是決意從淡水搬遷至三重。
但是這趟遷移,也使居家坪數隨之限縮,於是,盼望與毛孩互動場域依然擁有餘裕,日常生活仍保有節奏,便委請設計團隊打破既有界線,拓闢收納量與放大坪效感,為家庭時光盛然綻放溫暖光景。

Q:如何營造孩童與寵物的融洽居家關係?
與多數家有雙寶家庭,不同的是,大兒子是毛小孩,期望使大小兒子皆能擁有父母勻潤寵愛,在佈局形塑之際,則更著墨於寵物與萌孩不同所需,不只專注於共有環境捏塑,同時相當看重各自獨立空間,這些都會影響互動關係,亦是動線鋪排之核心起點。
比方說,首要梳理毛孩與孩子共同需求,他們可能會爭寵、搶食、嬉鬧、追跑,因此,將滿室朝「趣味」、「安全」,自是規劃首重方向,接著,再將個別需求一一作為鋪敘脈絡,像是毛孩需要跑跳嬉遊,亦要規劃一地專屬臥眠境域,相仿於人類的自我空間,當然不能忽視。

Q:如何扭轉大樑柱壓迫感?
設計師說道「本案有多處大型樑柱穿引,形成許多低矮處,我們採用表面修飾手法,也藉由樑柱錯置方位,加以匯聚出空間特性,巧妙迸發隱形動線。」
地坪動線疊合天花脈絡,可以達到多向度展開,讓場域產生和諧流動感,一如玄關鄰側,有一道從天花攀折至下的巨大樑柱,若僅採取微幅修飾,勢必無法消弭重量感,便將用餐區設置於此,透過上下樑柱包覆,不僅使區域圍塑感加乘,區域獨立性在視覺上也清晰跳脫。

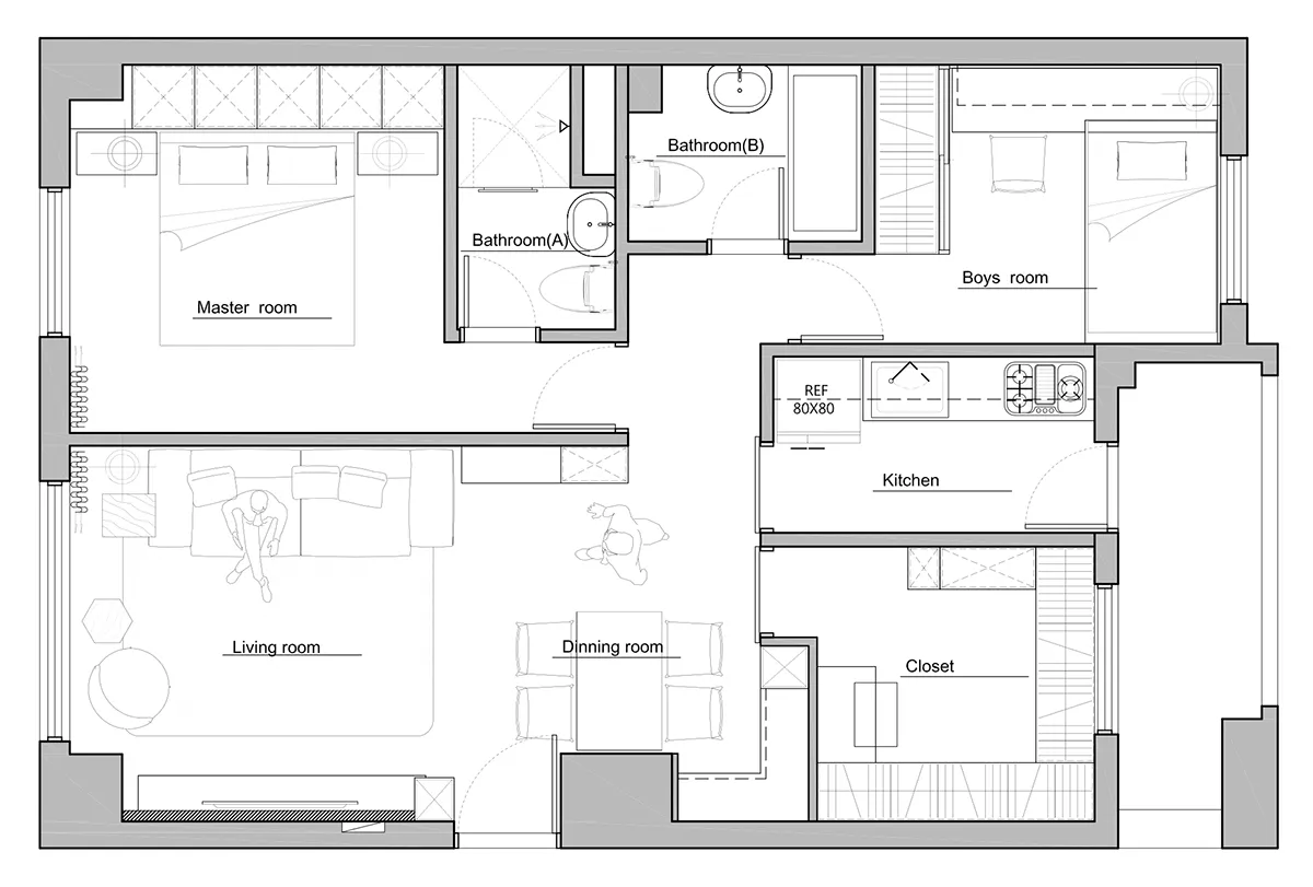
個案基本資料
三重 / 屋齡 8 年 / 電梯大樓 / 室內 23 坪 / 格局 3 房 2 廳 2 衛 / 居住人數 2 大 1 小 1 毛小孩

< 屋主需求 >
• 擴大收納需求
• 親子與寵物共處空間
< 各別空間 >
1. 玄關設計:
入口大門落於客餐廳腰際,為了加深落塵區內外分野,形構一道木質量體,恰與右方門側柱體有了相互掩映,藉由木質櫃體鋪敘,入門目光會凝縮至前方,左側則打造櫃面淺檯為放置隨手小物。

視線前方構築 L 形木質量體,下方以懸浮手法表現輕盈感,上方則緊密締連低樑,使樑與櫥櫃揉合為一體,此時,再於壁面錯落簡約一字型層架,使光流溢漂浮律動感,形成動靜視線錯覺,為家景揭開了美好序幕。

2. 客廳設計:
客廳與玄關因格局所致,打造一式木質高櫃,正也是依循生活軌跡,描摹而出的一道中軸,並將兩側動線與家景,作一分為二佈局劃分,亦是材料斷切的收接面。

同時展現團隊擅於「透過由多方角度,構成不同樣貌。」即便只是一隅材質交疊,甚或是兩種質地交融,設計師仍不妥協於多種可能性中,探循出一種完美方案,進而延伸出無縫拼接法。

這道電器櫃以 3:2 比例打造,比例 2 作為木質開放層架、比例 3 則以奶茶色門片穿引,橫置於灰色布紋牆面下方,使色塊與木質肌理形成無縫拼接,無任一多餘線條與空隙,將俐落與簡約調性,都還原至櫃面上。

3. 餐廳設計:
餐廳鄰樑柱而砌,使樑柱退於無形,區域感卻更形鮮明,上懸黑色鐵件層架,若放置一盆清新綠植,便為端景綴飾綠意,層架下方內隱燈條,使用餐時光擁有湛亮感,在兩側立面鋪排下,不僅形構深潤木質框景,同時使公領域從寬闊感,逐漸緩化為公私區域之過場。

4. 廚房設計:
保留建商原烹飪區,拆除原有一房,設置為更衣室之外,亦退縮些許坪數予廚房設備櫃,這也是女主人特別盼望擁有完善收整之處,上下櫃之際覆有一道灰鏡,釋放空間感,更於地坪築起高層板,可放置較少使用電器,盡顯刻畫之用心與細微。

5. 廊道設計:
大樑從餐廳一路延伸至通往私領域的廊道,減少過多包覆手法,巧妙於大樑盡頭,下折一曲弧線,形構弧面木質高櫃,下方正好是為大兒子貴賓犬,保留一地獨立私領域,櫃內亦是收納狗兒備品之處。

6. 主臥設計:
延續公領域之柔和奶茶色調,床背牆以上下櫃為儲藏區,別於無縫拼接,刻意留有淺溝縫,形塑為簡約樣式門片手把。

暖潤調性隨著上方一道光流,與中間檯面隱現微光,輕盪於空氣中,突顯上下櫃彷彿是浮現姿態,釋放質輕而輕量感受。

7. 兒童房設計:
別於一般兒童房,將收納量擴展至極致為主要規劃,一揭床架方方面面時,無論是抽屜式、上掀式、側掀式,便可見多種儲物機能。

連結床背牆與書桌旁,更砌一式奶茶色高櫃,在微光繚繞之際,一抹淡藍色壁面,緩緩流洩些許童趣淘氣感。

< 總體規劃 >
8. 建材挑選:
木作、木作烤漆、鐵件烤漆、美耐板、布紋美耐板、美耐板、長虹玻璃、拋光石英磚、淺色木地板、燈條

< 設計團隊 >
十拾設計
桃園市龜山區文化五路16號1樓
電話:03-397-1071
Email:t.tendesign@gmail.com
FB:facebook.com/t.tendesign/
IG:instagram.com/t.ten_design/
原文出處 ► https://decomyplace.com/n.php?id=10448
-
「專訪」開啟 45 年透天新篇章,改造桃園 69 坪簡約二代宅 - 十拾設計
家屋乘載著一個家庭的開枝散葉,有聚首,有離別,有的離家另組家庭,也有的留下陪伴父母,一如 45 年來為屋主一家遮風避雨的這幢老透天,紀錄著一家人有時各奔東西,有時相守的種種。
-
歡迎光臨,後來(Whole Life)!以一間書香濃郁的咖啡館,抵達最終的自己
在人生旅程中,我們總是拼命想要達到一個偉大的目標,持續追逐夢想,或是追求一場永恆的幸福,然而,當生命旅途不斷延伸,我們會逐漸意識到,那遙不可及的遠方都是為了抵達自己。
-
「專訪」築一室洋房風‧漫拾相伴時刻!台北 42 坪現代人文熟齡宅 - 十拾設計
生命若是一趟行旅,走向熟齡則迎來無與倫比豐盛,步伐更為輕盈、心處波瀾不興,屋主曾久居美國,如今回台定居,展開夫妻倆人新旅程,委託予曾屢次推薦為友人打造屋宅的十拾設計,期望將細膩手筆,以及對團隊的熟稔安