最新消息
台中學府路-艾文作品分享∥台中室內設計公司∥台中住宅設計∥台中新屋設計∥南區新屋客變∥南區新成屋裝潢
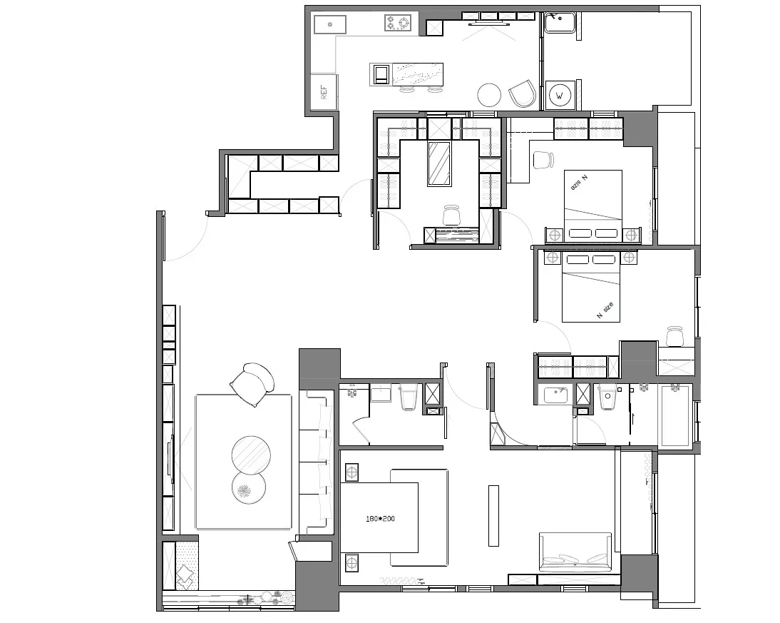
格局:四房兩衛
風格:現代風
本案以 黑與白的強烈對比 為主軸,搭配俐落線條與多元材質,營造出兼具沉穩與時尚的居家氛圍。從客廳到衛浴,每個空間都透過光影與色彩的平衡,展現現代風的獨特魅力。
主臥設計|靜謐質感的日常
主臥以大理石紋地坪與灰階色系為基調,床頭牆結合布料、石材與金屬線條,低調中帶出層次感。
電視牆採用獨立式中島結構,結合霧面黑與電壁爐設計,成為空間的視覺焦點。
靠窗的沙發區打造休憩角落,搭配收納展示櫃,讓生活更具彈性。透過落地窗即可欣賞綠意,讓臥室成為放鬆與沉澱的場域。

玄關 / 鞋櫃設計
走進家門,第一眼便能感受到秩序與質感。鞋櫃以大容量規劃,滿足收納需求,黑色玻璃與白色石紋兩種設計形式,展現不同氛圍。前者低調洗鍊,後者明亮大方,皆讓空間在整潔中保有獨特個性。
更衣室|私人的精品收納空間
步入更衣室,就像走進一個專屬於主人的精品展示櫃。
大面積的系統櫃體,以深灰木紋搭配玻璃櫃門,讓收納不僅實用,更兼具質感。
中央的玻璃展示島,將配件、飾品、皮帶與手錶清楚分格,收納一目了然,也讓每天的穿搭選擇多了一份儀式感。
充足的吊掛與抽屜空間,能完整收納四季衣物與行李箱;同時搭配柔和燈光,營造出低調卻奢華的氛圍,讓換裝的過程成為一種享受。
走廊特殊工法
利用弧形牆面的特殊工法,突破一般直角設計,讓動線更柔和流暢。搭配大理石紋地坪,不僅考驗施工精度,也成為空間裡獨特的設計亮點。

次臥房|童趣與實用並存
臥房以清爽藍色為主調,搭配木地板,營造舒適氛圍。
童趣床頭燈增添趣味,大容量衣櫃與書桌滿足收納與學習需求。
這是一個能隨孩子成長調整的溫馨空間。
次臥房|深藍色幾何主題房
這間臥室以深藍色為基調,透過幾何線條的切割設計,創造出前衛又有個性的視覺效果。搭配淺灰色床頭板與木地板,平衡了空間的冷冽感,讓整體氛圍沉穩又不失活力。
房內延伸出一個小型工作角落,利用靠窗的自然光與嵌入式收納,讓閱讀與辦公更加專注舒適。這樣的設計,不僅滿足了臥室的休憩功能,也兼顧了生活的多樣性。
客廳|沉穩大器 × 收納展示並重

[客廳]
整體空間以沉穩的灰色調為基底,搭配大理石紋地坪與線性間接照明,營造大器卻不壓迫的氛圍。
長型沙發延展了視覺尺度,能輕鬆容納多人使用,搭配單椅與圓形茶几,讓空間在正式與休閒之間取得平衡。

[客廳2]
電視牆以深色木皮結合展示櫃體,形成客廳的視覺焦點。
屋主收藏的公仔、模型藉由開放格層展示,既展現個人特色,也讓空間更有生活感。
整體比例透過隱藏式櫃體收納維持整潔,避免視覺凌亂。

[客廳角落]
靠窗角落設置了臥榻與小型櫃體,結合收納與休憩機能。
大片落地窗引入自然光線,搭配舒適的軟墊與抱枕,成為客廳裡最愜意的角落。
這個區域既能作為閱讀區,也能成為屋主的沉思小天地。
廚房設計
全黑色系搭配灰紋大理石中島,展現俐落與質感。中島延伸規劃休憩區,讓料理、交流與放鬆自然串連。收納完整、酒架精緻,讓空間既實用又有生活品味。

衛浴設計
白色衛浴間以大理石紋理搭配圓形背光鏡,明亮純淨,讓日常洗浴更顯清爽舒心。
黑色衛浴間則選用深色石材與黑色衛浴設備,展現沉穩大器的氛圍,帶來宛如精品飯店般的體驗。
