最新消息
【開箱】新竹 老屋室內翻新 優雅~奢寵的美式古典宅|新竹室內裝修|竹北室內裝修

在二寶出生後,開啟了換房的念頭,原本的房子住了接近快20年的房子,當初只做基本木作裝潢和買一些現成傢俱,就直接搬進來,後來孩子們陸續出生後,發現收納空間不足,東西零零散散,雖然家裡有28坪,但總覺得室內不開闊、壓迫感很重。 於是跟另一伴商量後當初決定要換房子,搬 新 家!!

(之前家裡狀況,雜亂不堪,在疫情期間,心情down到谷底)
殊不知,房價高到一個天花板,看了一圈後,想說還是找室內設計公司聊聊,看有沒有辦法將現在住的家改成我們喜歡的樣子。
第一間我們找了連鎖的系統櫃公司,雖然品質不錯,但作品風格都是一樣的路線,沒有TOUCH到我們的心。
第二間我們透過網路搜尋,找到了新竹在地的室內設計公司,新古典風格的作品是我們心中所想要的,就約了室內設計公司諮詢。

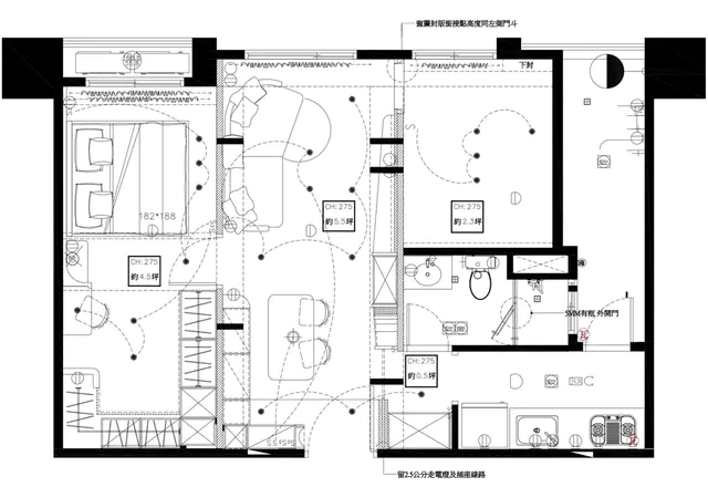
▲原本隔局樣式
洽談過程中,覺得設計師蠻專業的,會給良心建議。
我們沒有給明確的設定,只告訴設計師說希望收納充足、看起來有開闊感。
原本遊戲室想改為半開放式空間,利用玻璃隔間方式看起來有通透感開闊的感覺…
但設計師建議遊戲室維持原始的隔間,將來可以給二寶長大後使用的房間。
其他房間的格局也都不用動,做好空間收納即可。
也建議客廳配置部份將電視牆與沙發牆對調,加大電視牆的尺寸。
因為少開伙的關係,廚房推拉門可以拆除,讓室內空間看起來更通透。
也建議將原本建商所附的房間與浴廁的門,改為自己想要的顏色,用貼膜的方式,就能省下不少費用。
接下來就是裝修的過程,設計師很貼心,將工程的進度都幫我們記錄下來(`∇´)

▲地板是在原本的磁磚上貼木地板,所以地板有做保護工程。 這是拆除後(淨空所有家當)的樣子。

電視牆木作

天花板木作造型

主臥床頭牆油漆

系統櫃組裝

清潔完工

終於東西回歸,入住啦
接下來是室內設計公司找專業攝影師拍攝的作品照
也謝謝設計團隊長久以來的施工,您們辛苦了

一進來就有美式的優雅~還有一點點小慵懶的情調~

原本是沒有玄關區的,設計師用長虹玻璃隔出玄關區域,除了鞋櫃、置物櫃外,還多了穿鞋椅及全身鏡。因為玄關不是很大,在鏡面反射下,視覺上有放大的效果。

光線照進來,白色的基底,看起來非常乾淨、愜意,踏著舒適的木地板慢慢往裡走…. 廚房拆除玻璃門後看起來更清爽,最後設計師做了一個半高的矮牆,是我最喜愛的設計之一,除了可以遮擋一下檯面上的小家電之外,還造就了一個小中島的感覺

原始的廚房隔間是暗摸摸沒採光的空間

原本這面是沙發牆,改成大理石電視牆後是室內空間感大器很多,也與旁邊的收納櫃有延續性。

電視牆是銀狐大理石,因為不喜歡石材有拼接感,但又礙於石材的尺寸限制,所以下方結合白色格柵,這樣才不會有頭重腳輕的感覺。
兩側又加入燈光的點綴,晚上打光後十分有微醺的意境~

收納櫃運用美式線條、古典的金色把手,中間也沿用電視主牆的石材及格柵材質,避免過於複雜的材質讓空間顯得雜亂、負擔。

主臥室原本沒有任何的收納櫃(▼下圖),將收納做的完善,東西也都能隱藏起來。(▲上圖)

▲▼遊戲室跟女兒房都是粉色調,女兒超級愛粉色,就用他最愛的顏色打造他的專屬房間。

最後壓軸就是我最愛的更衣室 ▼

先看看原本慘不忍睹的更衣室,說是儲藏室也不為過

再看看現在設計過的更衣室,乾淨、整潔外,還有一個面窗的專屬化妝桌!!(╯✧∇✧)╯

只能說找設計師裝修房子,真的很值得, 原本想放棄的空間,經過設計師整頓後,又有新家的感覺了!
扭轉了原本的”阿雜”、壓迫,賦予空間新的樣貌。
謝謝設計師幫我們完成美式風格的夢想家~有了充足的收納規劃、採光通風,提高了生活品質,也為孩子們做好了未來準備。
搬進來幾個月了~每天回家開門的心情跟以前是截然不同的沒有凌亂的堆積物~而是舒服、溫馨的空間~